Меню
Соціальні мережі
Розділи
25 березня 2021 р. 17:25
Одеситів запрошують обговорити забудову кварталу в місті
1499
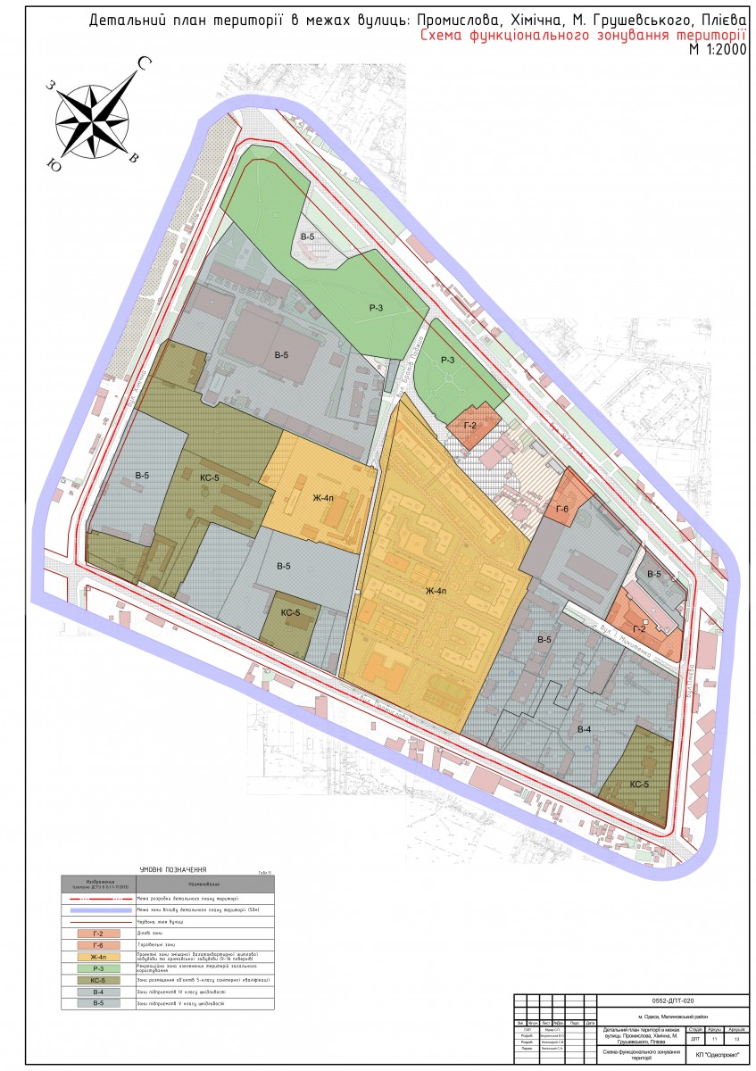
Департамент архітектури та містобудування Одеської міської ради запросив містян на громадські обговорення проєкту документа державного планування - детального плану території у межах вулиць: Промислова, Хімічна, М. Грушевського та Плієва.
Як зазначається в пояснювальній записці до проєкту, планується: будівництво комплексу, який складається з двох 10-поверхових 4-секційних житлових будинків, 16-ти поверхового 6-секційного будинку, 10-12-16-поверхового 6-ти секційного житлового будинку із вбудовано-прибудованим дитячим садком на 100 місць, трьох секційного 10-поверхового житлового будинку із вбудовано-прибудованим дитячим садком на 120 місць (всього на 2 тис. 126 квартир), з вбудовано-прибудованими приміщеннями адміністративного та громадсько-торгівельного призначення, амбулаторією на 200 кв. м, підземними паркінгами всього на 2 тис. 114 машино-місць і повним інженерно-комунікаційним забезпеченням.


Також планується:
- будівництво вбудовано-прибудованих дитячих дошкільних закладів на 100 та 120 місць;
- будівництво закладу загальньосвітньої школи на 900 місць;
- розміщення амбулаторії загальною площею 200 кв. м;
- будівництво підземних паркінгів на 2114 м/місць;
- благоустрій та озеленення території житлового мікрорайону;
- будівництво об'єктів інженерної інфраструктури, організація місць зберігання легкового автотранспорту;
- влаштування пожежних резервуарів та трансформаторних підстанцій;
- забезпечення можливості підходу людей до пунктів зупинок, заходів для забезпечення руху мало мобільних груп населення на внутрішньо квартальних об'єктах, вулицях, провулках та ін.;
- влаштування пішохідних алей і доріжок вздовж проїжджої частини вулиць і проїздів;
- вдосконалення дорожньо-транспортної мережі вулиць і пішохідних тротуарів, включаючи влаштування сучасного твердого дорожнього покриття, зовнішнього освітлення, благоустрою та озеленення територій вздовж проїжджої частини, пристрій нової і модернізації існуючої системи відведення зливових стоків.
У зв'язку з цим необхідна модернізація існуючої соціальної та інженерно-транспортної інфраструктури кварталу.


Нагадаємо, у червні минулого року Одеський муніципалітет повідомив про проведення громадських обговорень детального плану території в межах вулиць Старопортофранківської, Градоначальницької, Мечникова і Торгової, а також звіту про стратегічну екологічну оцінку проєкту.
Громадські слухання з приводу зміни назв проспекту Небесної сотні та вулиці Інглезі, які організував муніципалітет, у грудні минулого року завершилися нічим.
